Aluminum windows
Sleek, Durable, and Energy Efficient!
Aluminum windows are a great choice for your home because they offer exceptional durability and require minimal maintenance. Their sleek, modern design can enhance the aesthetic appeal of any house. Aluminum is also highly resistant to corrosion and weather conditions, ensuring long-lasting performance. Additionally, these windows provide excellent insulation, improving energy efficiency and helping to reduce utility bills.
Ready to upgrade to aluminum windows? Contact us today for a free quote and expert advice!
Browse below
Technical Information for Professionals
Genesis 75
- Genesis 75 presents a three-chamber window and door system tailored for windows with enhanced thermal insulation,
- Meeting the 2021 requirements, Genesis 75 windows boast thermal parameters achieving a Uw value from 0.90,
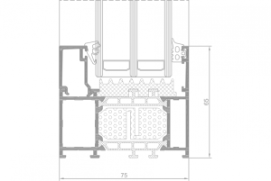
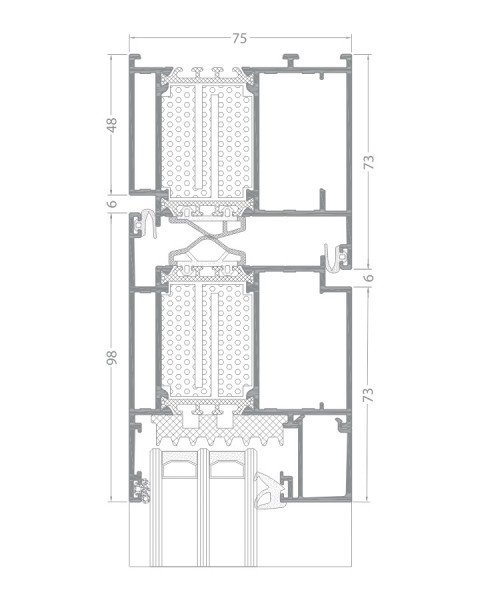
- At its core, the Genesis 75 system features frame profiles with a depth of 261⁄64 inches,
- The diverse range of profiles available within the Genesis 75 system facilitates the design of modern windows, doors, and storefronts with exceptional functionality,
- Utilizing innovative insulation materials, Genesis 75 introduces a new standard to the market. In addition to the conventional central window gasket, an extra thermal seal enhances window sealing, ensuring superior performance in air infiltration and water resistance,
- With a variety of profile finishes, including renovation profiles, the system offers options to imbue each window with a distinctive character.
- The system also enables the creation of fully glazed 90-degree corner connections,
- Setting a new standard for window insulation, the Genesis 75 window and door system prioritizes user-friendly ergonomics and modern profile aesthetics,
- The Genesis OUT option offers outward-opening windows for added versatility,
- With the Genesis SU option, a concealed sash design enhances the system’s sleek appearance,
- Utilizing the Genesis 75 door system, panel doors can also be seamlessly fabricated,
- Designed for both public and residential buildings, Genesis 75 is a versatile system suitable for various window and door constructions,
- Choose from a wide range of colors, including options from the RAL palette, structural colors, Aliplast Wood Colour Effect for wood-like finishes, Aliplast Loft View for stone-like surfaces, anodized finish, and bicolored combinations.
Got a project? Want to talk business?
Realizations
Performance
| System name | Design Pressure (DP) | Structural Pressure (STP) | U-Factor | SHGC (Solar Heat Gain Coefficient) | Visible Transmittance | Condensation Resistance |
|---|---|---|---|---|---|---|
| Genesis Tilt Turn Window | +50.13psf | +75.19psf | from 0.18 | from 0.14 | from 0.26 | 49 |
| Genesis Fixed Window | none | none | from 0.16 | from 0.22 | from 0.45 | 49 |
Technical specification
Cross section
Visual
Technical specification
| SYSTEM | MATERIAL | DEPTH OF FRAME | DEPTH OF LEAF | GLAZING RANGE | ACOUSTIC | TYPE OF WINDOWS | TYPE OF DOORS |
| GN 75 window | aluminium/ thermal insulation | 261⁄64in | 35⁄16in | fix 03⁄64in – 213⁄64in / 023⁄64in-29⁄16in | 45 (-1,-3) dB | fix, turn-only, tilt and turn | – |
| GN 75 door | aluminium/ thermal insulation | 261⁄64in | 261⁄64in | 03⁄64in – 221⁄64in | 44 (-1,-4) dB | – | single and double doors, outside and inside opening, panic doors |
Cross section
Visual














