Modern Slide
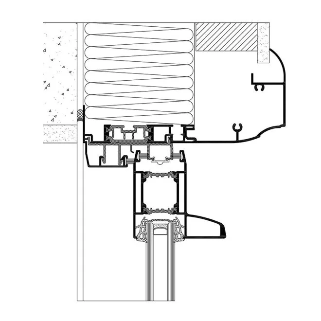
This system revolutionizes the creation of sliding structures, enhancing thermal efficiency significantly. Known as Modern Slide, it caters to residential, private, and public buildings alike. One standout feature, Galandage, introduces a unique structural innovation, enabling doors to seamlessly disappear within building walls when fully opened.
By harnessing this system, sliding structures can be tailored for optimal thermal performance. The versatility of the Modern Slide system is evident in its accommodation of 2-, 3-, and 4-rail frames, offering flexibility in facade design. Galandage functionality ensures that sliding leaves can virtually vanish within the building wall, maximizing clear openings when in use.
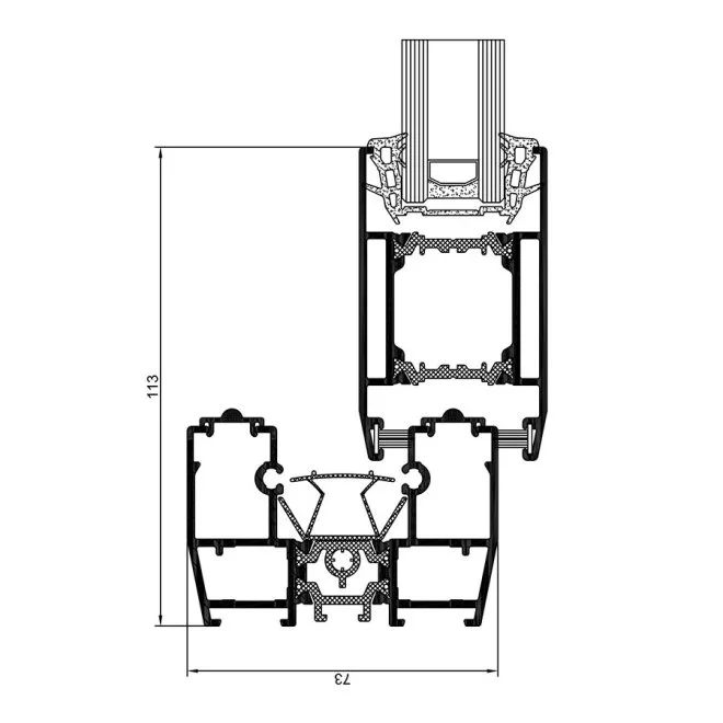
Moreover, the system introduces the monoblock solution, seamlessly integrating sliding structures within the thermal insulation layer of rooms. With a joint width of just 35 mm between two structure leaves, and profiles available in three versions to meet varying resistance requirements, it sets a new standard for efficiency and adaptability.
The system boasts structural sleekness and contemporary aesthetics.
It supports leaf weights of up to 250 kg and offers infill thickness options of 24, 28, and 32 mm. Additionally, it provides the option to incorporate the Flyscreen system, which serves as an effective barrier against insects.
A diverse array of colors is available, including selections from the RAL palette (Qualicoat 1518), textured colors, Aliplast Wood Colour Effect (resembling wood tones), Aliplast Loft View (mimicking stone surfaces with Qualideco PL-0001), anodized colors (Qualanod 1808), and bi-color finishes.
TECHNICAL SPECIFICATION
| SYSTEM | MATERIAL | DEPTH OF FRAME | DEPTH OF LEAF | GLAZING RANGE | WEIGHT OF LEAF | TYPE OF DOORS |
|---|---|---|---|---|---|---|
| MDS | aluminium/polyamid | 73,8-195,9 mm | 44 mm | 24 mm / 28 mm / 32 mm | up to 250 kg | sliding |
PERFORMANCE
| SYSTEM | THERMAL INSULATION UF* | AIR PERMEABILITY | WINDLOAD RESISTANCE | WATERTIGHTNESS |
|---|---|---|---|---|
| MDS | Uf from 1,50 W/m2K | Class 3; EN 12207 | Class C1 (400 Pa); EN 12210 | Class 6A (250 Pa); EN12208 |
